【新築戸建】フェリシア東鳴尾町1丁目3号地
■阪神武庫川線『東鳴尾』駅から徒歩2分
■閑静な住宅街
■お買い物・飲食・公園その他施設が充実!
※仲介業者あり
| 沿線・駅
所在地 |
|---|
|
阪神武庫川線『東鳴尾』駅より徒歩2分 兵庫県西宮市東鳴尾町1丁目 |
| 価格 |
|---|
| ---万円 |
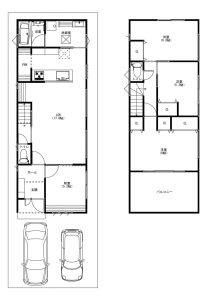
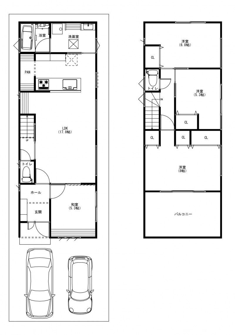
| 間取り
専有面積 |
|---|
|
4LDK ㎡ |
| 物件種目 | 新築戸建 | 物件名 | 【新築戸建】フェリシア東鳴尾町1丁目3号地 |
|---|---|---|---|
| 建物構造 | 木造 | 階建・階 | 2階 |
| 築年数 | 2021/08 | 駐車場 | 2台分 |
| バルコニー | 西向き | バルコニー面積 | ㎡ |
| 設備 | 都市ガス / 上水道 / 下水道 / システムキッチン / バス・トイレ別 / 浴室乾燥機 トイレ2箇所 / 室内洗濯機置き場 / 収納スペース |
||
| 総戸数 | 1戸 | 販売戸数 | 1戸 |
| 地域・地区 | 第一種住居地域・第5種高度地区・市街化区域 | 地目 | 宅地 |
| 建ペイ率 | 60 % | 容積率 | 200 % |
| 敷地面積 | 106.40 ㎡ | 建築面積 | 57.96 ㎡ |
| 建築延床面積 | 101.85 ㎡ | 私道負担 | |
| 管理費 | 円 | 修繕積立金 | 円 |
| 管理形態 | 管理会社 | ||
| 現況 | 引渡し | ||
| 取引態様 | 売主 | 情報更新日 | 2021/12/13 |

