【新築戸建】フェリシア尼崎市上ノ島町1丁目
■阪急神戸本線『武庫之荘』駅から徒歩15分
■駐車場2台分のスペース(車種制限有り)
■医療施設やお買い物施設も充実!
| 沿線・駅
所在地 |
|---|
|
阪急神戸本線『武庫之荘』駅から徒歩12分 兵庫県尼崎市上ノ島町1丁目 |
| 価格 |
|---|
| ---万円 |
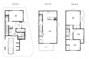
| 間取り
専有面積 |
|---|
|
4LDK ---㎡ |
| 物件種目 | 新築戸建 | 物件名 | 【新築戸建】フェリシア尼崎市上ノ島町1丁目 |
|---|---|---|---|
| 建物構造 | 木造 | 階建・階 | 3階 |
| 築年数 | 2021/08 | 駐車場 | 2台駐車可能(車種制限有り) |
| バルコニー | 東向き | バルコニー面積 | ㎡ |
| 設備 | 都市ガス / 上水道 / 下水道 / システムキッチン / 食器洗い乾燥機 / バス・トイレ別 追い焚き機能 / 浴室乾燥機 / トイレ2箇所 / 室内洗濯機置き場 / 洗面所収納スペース ウォークインクローゼット / シューズクローク |
||
| 総戸数 | 1戸 | 販売戸数 | 1戸 |
| 地域・地区 | 第一種中高層住宅専用地域 | 地目 | 宅地 |
| 建ペイ率 | 60% | 容積率 | 200% |
| 敷地面積 | 72.15 ㎡ | 建築面積 | 44.14 ㎡ |
| 建築延床面積 | 119.47 ㎡ | 私道負担 | |
| 管理費 | 円 | 修繕積立金 | 円 |
| 管理形態 | 管理会社 | ||
| 現況 | 引渡し | ||
| 取引態様 | 売主 | 情報更新日 | 2021/12/13 |

















