【新築戸建】フェリシア箕面市桜1丁目
■阪急箕面線『牧落』駅から徒歩7分
■緑豊かで閑静な住宅街
■お買い物・飲食・教育施設が充実!
| 沿線・駅
所在地 |
|---|
|
阪急箕面線『牧落』駅から徒歩7分 大阪府箕面市桜1丁目 |
| 価格 |
|---|
| ---万円 |
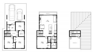
| 間取り
専有面積 |
|---|
|
4LDK ---㎡ |
| 物件種目 | 新築戸建 | 物件名 | 【新築戸建】フェリシア箕面市桜1丁目 |
|---|---|---|---|
| 建物構造 | 木造 | 階建・階 | 2階 |
| 築年数 | 2019/08 | 駐車場 | 2台分 |
| バルコニー | 北向き | バルコニー面積 | 17.13㎡ |
| 設備 | 都市ガス / 上水道 / 下水道 / インターネット対応 / 高速インターネット アイランドキッチン / バス・トイレ別 / トイレ2箇所 / 収納スペース ウォークインクローゼット / 室内洗濯機置き場 / 洗面所 |
||
| 総戸数 | 1戸 | 販売戸数 | 1戸 |
| 地域・地区 | 第1種低層住居専用地域・第一種高度地区 | 地目 | 宅地 |
| 建ペイ率 | % | 容積率 | % |
| 敷地面積 | 96.34 ㎡ | 建築面積 | 57.33㎡ |
| 建築延床面積 | 106.20㎡ | 私道負担 | |
| 管理費 | 円 | 修繕積立金 | 円 |
| 管理形態 | 管理会社 | ||
| 現況 | 引渡し | ||
| 取引態様 | 売主 | 情報更新日 | 2021/10/23 |






















